REF 1374809-0L

63 avenue des Champs Elysées

75008 PARIS

Loyer

850 € HT/HC/m²/an

Surface

242 m² non divisibles

Disponibilité

Immédiate

Type de Bail

3-6-9 ans

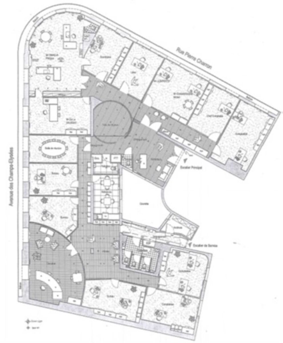
Situé en plein cœur du QCA au sein d'un très bel immeuble haussmannien d'angle, ravalé, bénéficiant d'un double accès sur l'avenue des Champs Elysées et sur la rue Pierre Charron, Alex Bolton vous propose une surface de bureaux de 240 m² entièrement rénovée.
Celle-ci dispose de très peu de contraintes porteuses, de la climatisation ainsi que d'un balcon filant.
Votre contact pour toute visite : Jérémy MARCIANO / 07.81.98.52.36 / jeremymarciano@alexbolton.fr

Prestations

Rénové
Immeuble de services
Espaces extérieurs
Climatisation réversible
Salles de réunion partagées
Ascenseur / Monte-charge
Accès PMR
Locaux lumineux
Open space
Câblage informatique
Sécurité

- Immeuble d'angle en pierre de taille
- Ensemble de très bon standing
- Gardiennage 24h/24
- Hôtesse d'accueil
- Accès livraison avec monte charge
- Bureaux rénovés par le propriétaire, avec vue sur les Champs Elysées
- Plateau sans porteur
- Chauffage collectif et climatisation double flux
- Fibre Optique Orange
- Balcon filant de 10 m²

Configuration :
- Open space
- Salle de réunion
- Bureau de direction
- Kitchenette
- 3 sanitaires dont 1 PMR
- 1 douche

Surfaces disponibles

1 lots disponibles
Étage Type Surface Disponibilité Type de Bail Loyer Charges
4ème étage Bureaux 242 m² Immédiate 3-6-9 ans 850 € HT/HC/m²/an 54 € m²/an HT

Les informations sur les risques auxquels ce bien est exposé sont disponibles sur le site Géorisques : georisques.gouv.fr

Jeremy MARCIANO

07 81 98 52 36

jeremymarciano@alexbolton.fr

Annonces similaires

Voir toutes les transactions