REF 2163009-0L

12 rue Auber

75009 PARIS

Prix

2 450 000 € HD

Surface

141 m² non divisibles

Disponibilité

Immédiate

Découvrez une opportunité rare d'acquérir des bureaux d'exception au cœur de Paris. Niché dans un magnifique immeuble en pierre de taille, ce bien d'angle se distingue par son impressionnante façade de plus de 60 mètres, offrant une visibilité inégalée. Élevé sur six étages avec un niveau de sous-sol, cet espace prestigieux séduit par ses très belles hauteurs sous plafond, créant un cadre de travail inspirant et lumineux. Nous vous proposons un plateau à la vente de 141 m². Ne manquez pas cette chance unique de vous installer dans un environnement alliant charme historique et fonctionnalité moderne, idéal pour valoriser votre entreprise.

Prestations

Rénové
Espaces extérieurs
Climatisation réversible
Ascenseur / Monte-charge
Locaux lumineux
Hauteur sous plafond

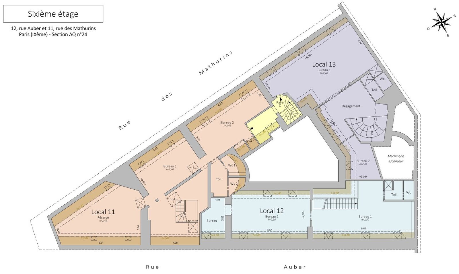
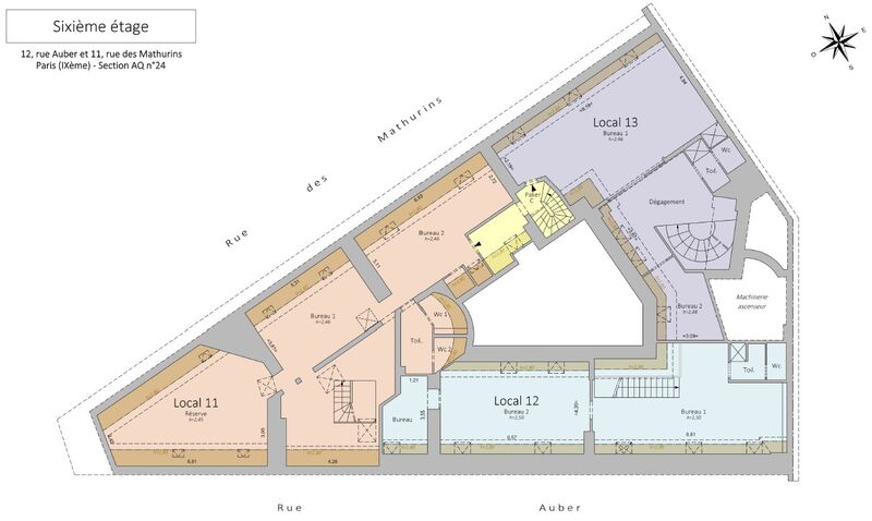
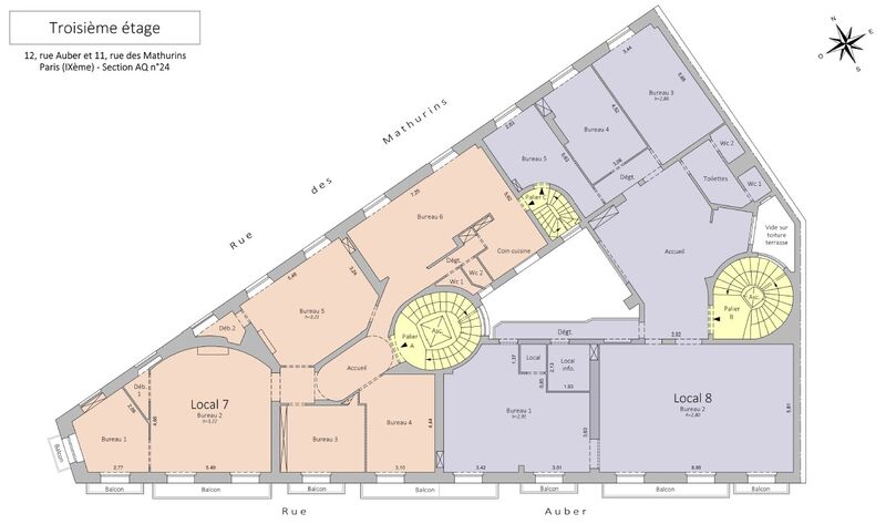
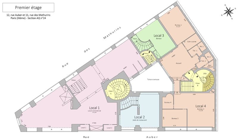
- Très bel immeuble en pierre de taille, élevé en R+6 sur 1 niveau de sous-sol
- Immeuble d'angle offrant une excellente visibilité et un grand linéaire de façade de plus de 60 m
- Surface utile totale de 2 497 m² dont 1 665 m² de bureaux disponibles à la vente
- Des plateaux de bureaux courants d'environ 330 m² répartis du 1er au 6ème étage (divisés en deux lots de 140 à 190 m² par étage), alliant confort, luminosité et belles hauteurs sous plafond pour un environnement de travail optimal
- 3 lots de commerce répartis du sous-sol au 1er étage
- Climatisation de chacun des lots
- Capacitaire de 200 personnes, soit 1 personne pour 8,7 m²
- Très belles hauteurs sous plafond (allant de 2,95m à 3,40m)
- Balcons filants sur la totalité du 5ème étage et côté rue Auber au 2ème étage et plusieurs balcons côté rue Auber au 3ème étage
- Hall d'entrée indépendant pour les bureaux
- Parties communes rénovées (remplacement complet de l'ascenseur de la cage d'escalier A ; remplacement du groupe de traction de l'ascenseur de la cage d'escalier B)
- Révision effectuée de la toiture avec réfections diverses zinc / plomb / ardoise

Surfaces disponibles

1 lots disponibles
Étage Type Surface Disponibilité Prix (m²)
2ème étage Bureaux 141.3 m² Immédiate 17 339 € m² HD

Les informations sur les risques auxquels ce bien est exposé sont disponibles sur le site Géorisques : georisques.gouv.fr

Rémi SAUSSEY

07 60 43 30 93

remisaussey@alexbolton.fr

Annonces similaires

Voir toutes les transactions