REF 1223175-0L

18 rue Drouot

75009 PARIS

Loyer

690 € HT/HC/m²/an

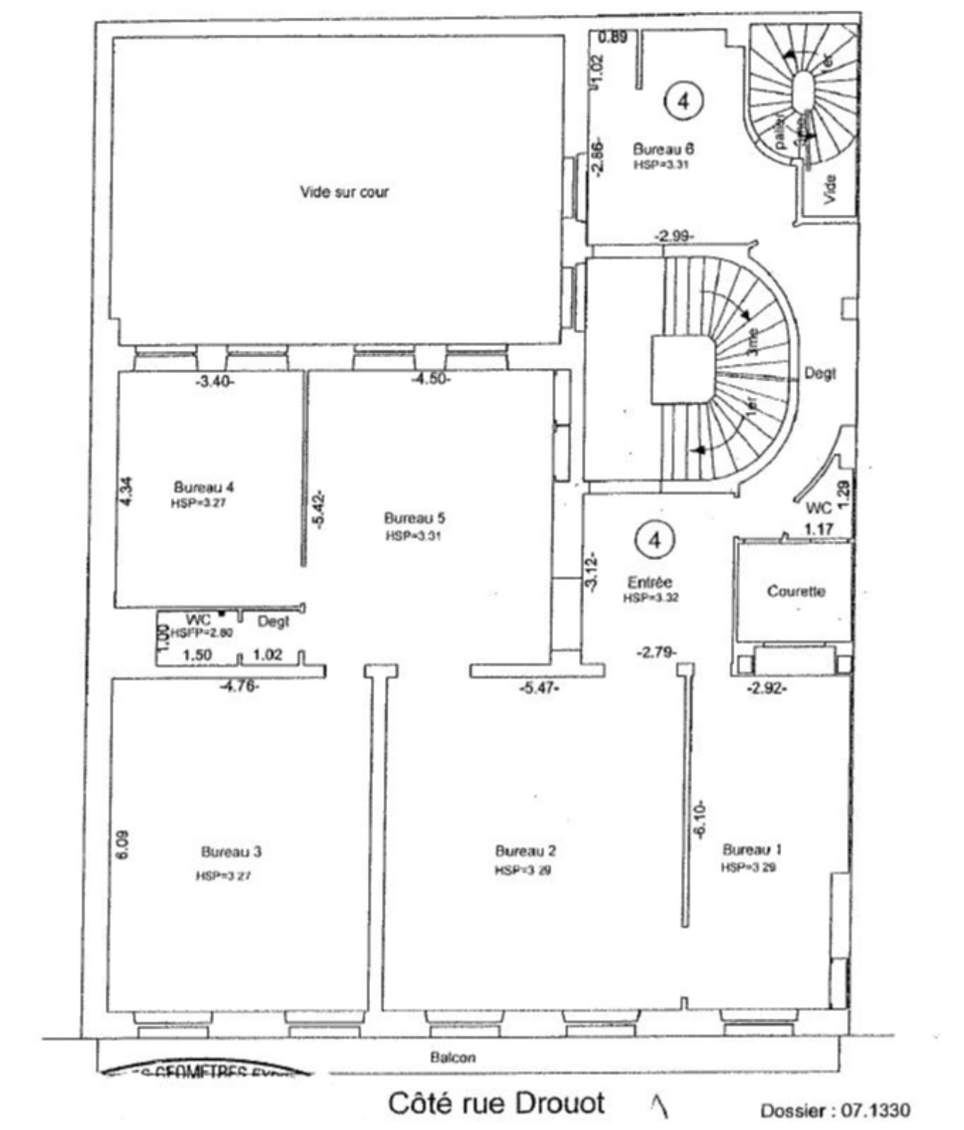
Surface

157 m² non divisibles

Disponibilité

Immédiate

Type de Bail

3-6-9 ans

Dans le 9ème arrondissement, à toute proximité de l'hôtel des ventes Drouot, Alex Bolton vous propose à la location, une surface de 157 m² dans un immeuble haussmannien. La surface, complètement rénovée en 2023 et climatisée, est disponible immédiatement.
Le plateau profite d'une très belle hauteur sous plafond, de beaux volumes en parquet/moulures et d'une cuisine.
Possibilité de rachat du mobilier en place.
Votre contact pour toute visite : cedelasimone@alexbolton.fr / 06.31.59.50.7

Prestations

Rénové
Immeuble de services
Espaces extérieurs
Climatisation réversible
Ascenseur / Monte-charge
Locaux lumineux
Hauteur sous plafond
Câblage informatique
Sécurité

- Parties communes de qualité
- Accès sécurisé par badge
- Gardienne
- Ascenseur

- Ascenseur
- Locaux rénovés récemment
- Climatisation récente (2023)
- 5 espaces de travail
- Parquet et moulures
- Très belle hauteur sous plafond
- Locaux lumineux
- Balcon filant
- Espace cuisine
- Chauffage individuel au gaz
- Fibre Optique
- Possibilité du rachat du mobilier en place

Surfaces disponibles

1 lots disponibles
Étage Type Surface Disponibilité Type de Bail Loyer Charges
2ème étage Bureaux 152 m² Immédiate 3-6-9 ans 690 € HT/HC/m²/an 51 € m²/an HT

Les informations sur les risques auxquels ce bien est exposé sont disponibles sur le site Géorisques : georisques.gouv.fr

Charles-Edouard DE LA SIMONE

06.31.59.50.72

cedelasimone@alexbolton.fr

Annonces similaires

Voir toutes les transactions