REF 1410706-0L

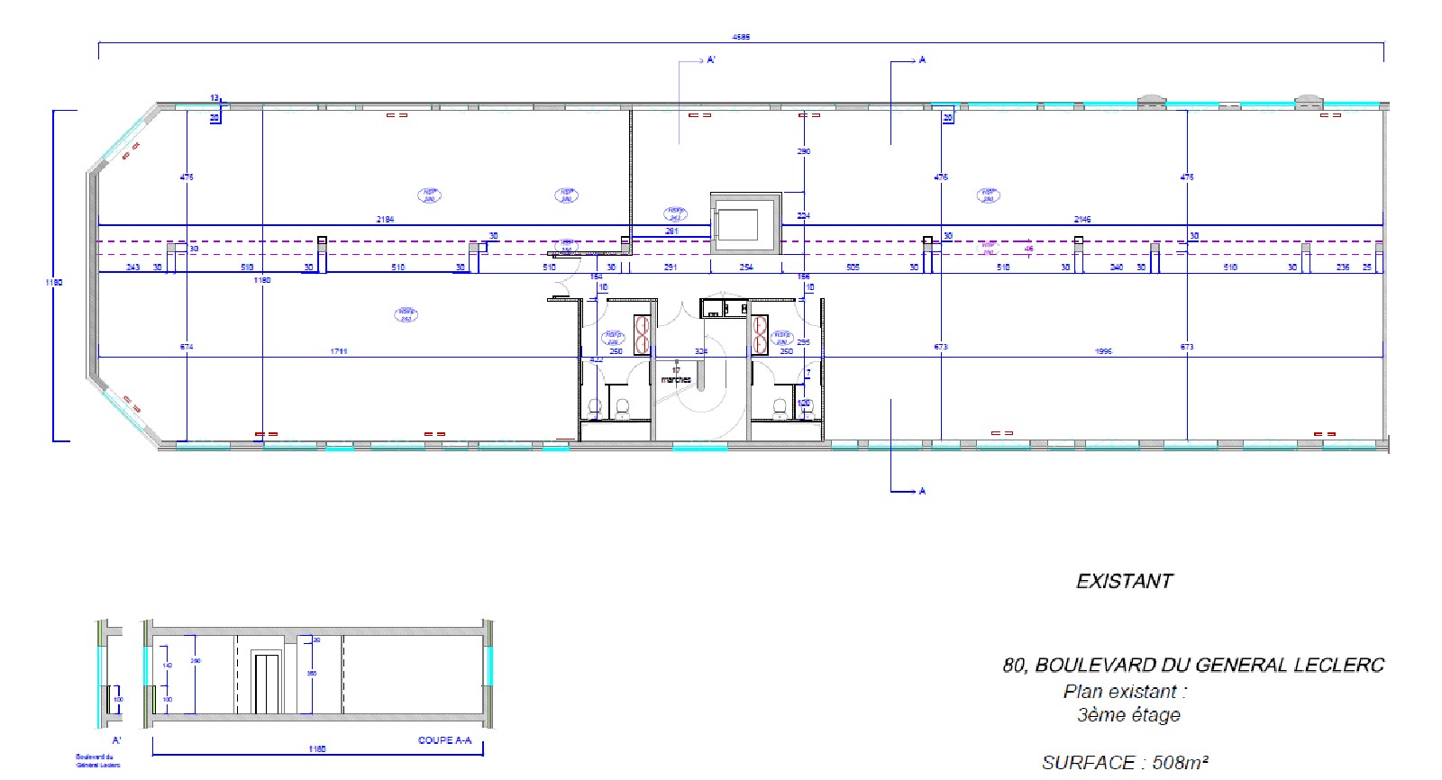
80 boulevard du Général Leclerc

78220 VIROFLAY

Prix

nous consulter

Surface

1 393 m² divisibles à partir de 93 m²

Disponibilité

Immédiate

Alex Bolton vous propose à la vente neuf plateaux de bureaux idéalement situés en plein cœur de Viroflay. Ces surfaces offrent un environnement de travail lumineux, fonctionnel et facilement aménageable selon les besoins des futurs occupants.
Les bureaux bénéficient également de 37 emplacements de stationnement en sous-sol, un véritable atout sur le marché local.

Prestations

Immeuble indépendant / Hôtel particulier
Parking voitures
Locaux lumineux

- Immeuble indépendant en bon état d'usage
- Usage exclusif de bureau
- Plateaux lumineux avec une vue dégagée
- Façade en pierre agrafée
- Structure en acier béton
- 37 emplacements de parking en sous-sol

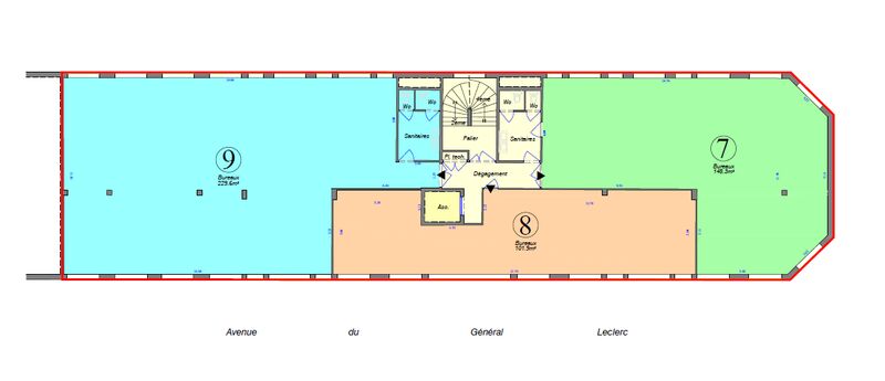
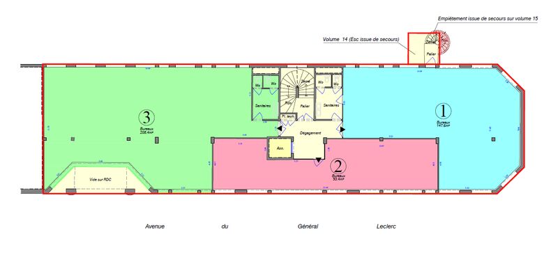
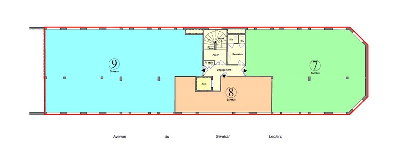
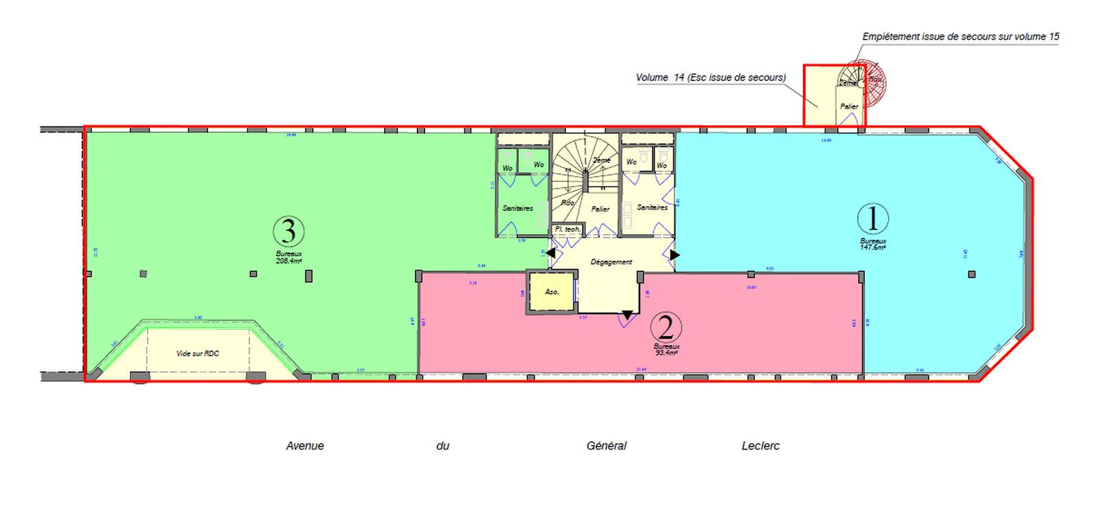
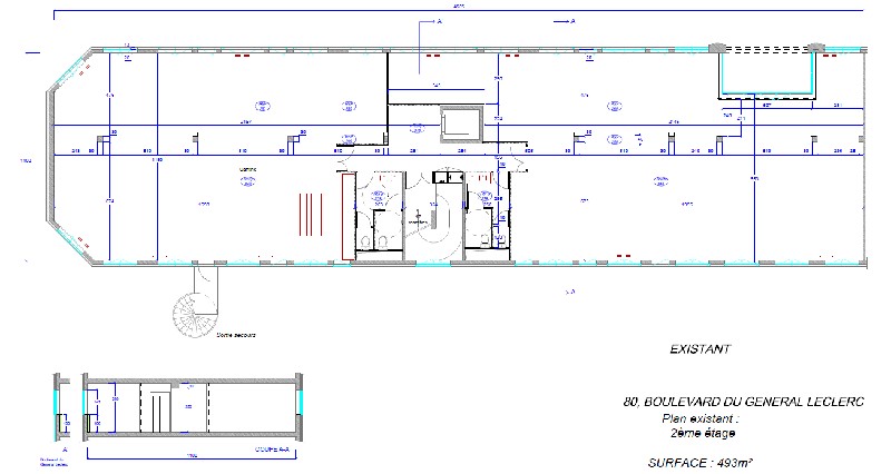
Surfaces disponibles

10 lots disponibles
Étage Type Surface Disponibilité Prix (m²)
Sous-sol Parkings / Immédiate m² HD
3ème étage Bureaux 101.9 m² Immédiate 4 500 € m² HD
3ème étage Bureaux 148.3 m² Immédiate 4 500 € m² HD
3ème étage Bureaux 229.6 m² Immédiate 4 500 € m² HD
2ème étage Bureaux 101.2 m² Immédiate 4 500 € m² HD
2ème étage Bureaux 148.3 m² Immédiate 4 500 € m² HD
2ème étage Bureaux 215.1 m² Immédiate 4 500 € m² HD
1er étage Bureaux 93.4 m² Immédiate 4 500 € m² HD
1er étage Bureaux 147.6 m² Immédiate 4 500 € m² HD
1er étage Bureaux 208.4 m² Immédiate 4 500 € m² HD

Les informations sur les risques auxquels ce bien est exposé sont disponibles sur le site Géorisques : georisques.gouv.fr

Abdou SARR

abdousarr@alexbolton.fr

Annonces similaires

Voir toutes les transactions