REF 1439600-0L

75009 PARIS

Prix

2 175 000 € HT HC

Surface

150 m² non divisibles

Disponibilité

Immédiate

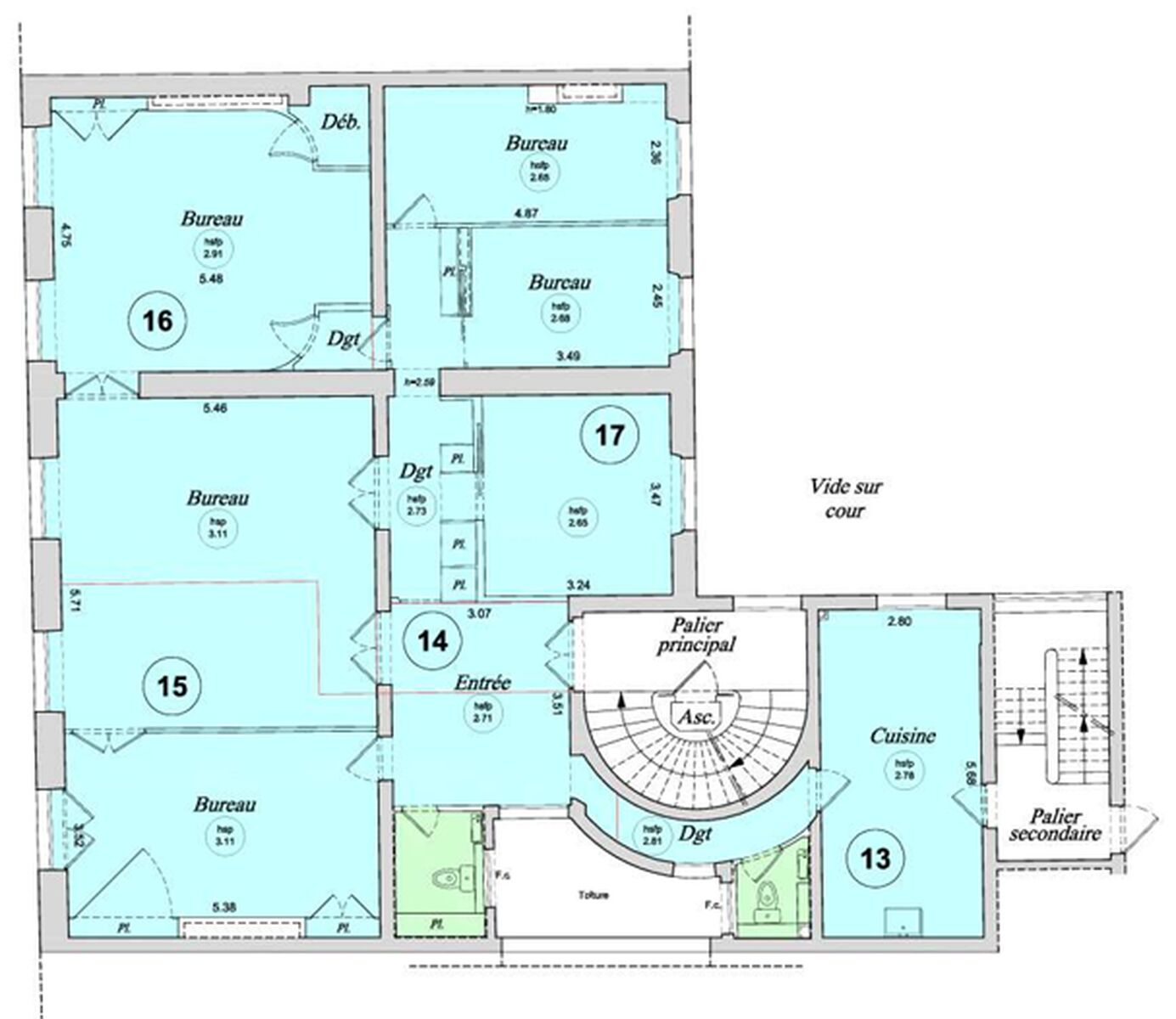
A proximité de la gare Saint Lazare, Alex Bolton vous propose à la vente une surface de bureaux d'environ 150 m² récemment rénovée.
Commercialité à 100% sut l'ensemble de la surface.
Votre contact pour toute visite : Jérémy MARCIANO / 07 81 98 5 236 / jeremymarciano@alexbolton.fr

Prestations

Rénové
Certifications environnementales
Immeuble de services
Locaux lumineux
Hauteur sous plafond
Câblage informatique
Sécurité
Locaux techniques

- Parties commune rénovées
- Contrôle d'accès
- Fibre optique

- Surface rénovée
- Locaux lumineux
- Belle hauteur sous plafond
- Moulures et cheminées
- Câblage informatique existant
- Local technique
- Double vitrage
- 6 bureaux et une cuisine
- Cave en sous-sol

Surfaces disponibles

1 lots disponibles
Étage Type Surface Disponibilité Prix (m²)
1er étage Bureaux 150 m² Immédiate 14 500 € m² HD

Les informations sur les risques auxquels ce bien est exposé sont disponibles sur le site Géorisques : georisques.gouv.fr

Jeremy MARCIANO

07 81 98 52 36

jeremymarciano@alexbolton.fr

Annonces similaires

Voir toutes les transactions