REF 2139448-0L

7-9 rue des Petites Ecuries

75010 PARIS

Prix

15 210 000 € HD

Surface

1 174 m² non divisibles

Disponibilité

6 mois après accord

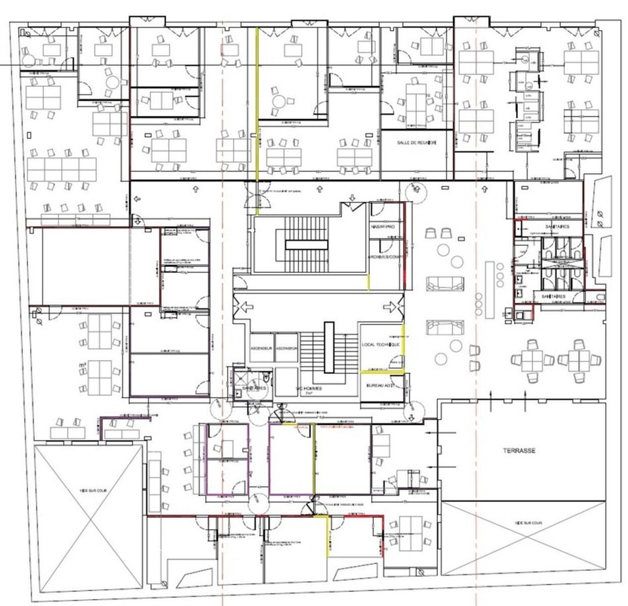
À mi-chemin entre Bonne Nouvelle et la Gare de l’Est, Alex Bolton propose à la vente un plateau de bureaux de 1 174 m², traversant, atypique et modulable. Situé au 2e étage d’un immeuble R+3 avec de nombreux commerces, restaurants et parkings à proximité immédiate, il se présente comme un vaste loft industriel aux matériaux bruts (poutres métalliques, briques, béton ciré…). Facilement aménageable, il comprend bureaux, open spaces, salles de réunion et de détente, ainsi qu’une belle terrasse. Environnement très animé et excellente accessibilité.

Prestations

Atypique
Immeuble de services
Espaces extérieurs
Climatisation réversible
ERP
Ascenseur / Monte-charge
Locaux lumineux
Surfaces fonctionnelles
Hauteur sous plafond
Câblage informatique
Sécurité

- Style industriel : poutres métalliques, béton ciré, briques, cloisons en bois vitrées
- Peu de contraintes porteuses
- Deux escaliers et deux ascenseurs
- Très beau plateau traversant à usage commercial détenu en copropriété
- Très belle terrasse de 80 m² accessible
- Belle hauteur sous plafond
- Interphone
- Climatisation réversible
- Fibre optique

Surfaces disponibles

1 lots disponibles
Étage Type Surface Disponibilité Prix (m²)
2ème étage Bureaux 1174 m² 6 mois après accord m² HD

Les informations sur les risques auxquels ce bien est exposé sont disponibles sur le site Géorisques : georisques.gouv.fr

Guillaume MAHISTRE

06 33 44 50 93

guillaumemahistre@alexbolton.fr

Annonces similaires

Voir toutes les transactions