REF 2112803-0L

69-71 avenue Pierre Grenier

92100 BOULOGNE BILLANCOURT

Loyer

320 € HT/HC/m²/an

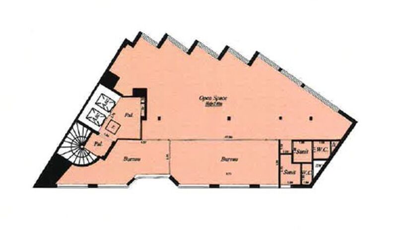
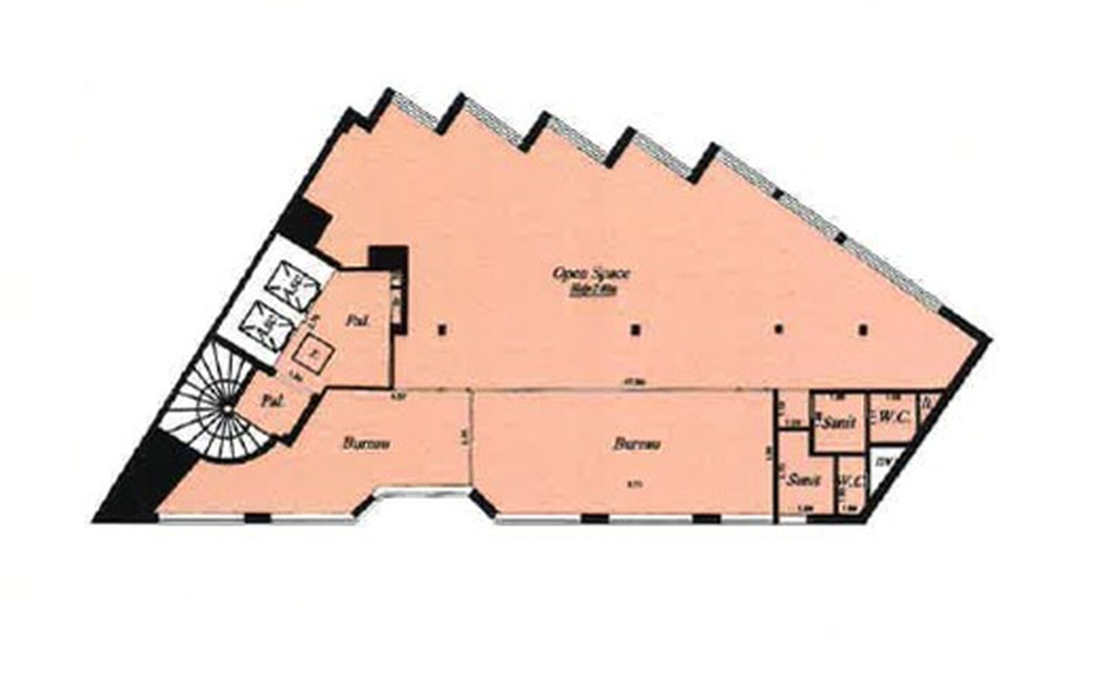
Surface

235 m² non divisibles

Disponibilité

15 février 2026

Type de Bail

3-6-9 ans

Nous proposons à la location un espace de bureaux de 235 m², non divisibles, idéalement situé à Boulogne-Billancourt. Ce bien offre un cadre professionnel prestigieux et fonctionnel, répondant aux exigences des entreprises en quête d'un environnement de travail moderne et bien desservi. Une opportunité rare à saisir.

Prestations

Immeuble de services
Ascenseur / Monte-charge
Sécurité

- Immeuble de bon standing
- Contrôle d'accès extérieurs
- Contrôle d'accès des ascenseurs
- Hall d'entré sécurisé et de bon standing
- Quartier vivant

Surfaces disponibles

1 lots disponibles
Étage Type Surface Disponibilité Type de Bail Loyer Charges
8ème étage Bureaux 235 m² 15 février 2026 3-6-9 ans 320 € HT/HC/m²/an N.C.

Les informations sur les risques auxquels ce bien est exposé sont disponibles sur le site Géorisques : georisques.gouv.fr

Jeremy MARCIANO

07 81 98 52 36

jeremymarciano@alexbolton.fr

Annonces similaires

Voir toutes les transactions