REF 1437303-0L

68 rue de Villiers

92300 LEVALLOIS PERRET

Loyer

320 € HT/HC/place/an

Surface

261 m² non divisibles

Disponibilité

1er mars 2026

Type de Bail

3-6-9 ans

A proximité immédiate de la station de métro Anatole France Alex Bolton vous propose à la location une surface d'environ 250 m² au sein d'un immeuble de standing bénéficiant d'une hôtesse d'accueil. .
Entièrement rénovée par le propriétaire, la surface offre une flexibilité d'aménagement et dispose de très peu de contraintes porteuses.
Votre contact pour toute visite : Jérémy MARCIANO / 07 81 98 5 2 36 / jeremymarciano@alexbolton.fr

Prestations

Rénové
Certifications environnementales
Immeuble de services
Climatisation réversible
Surfaces fonctionnelles
Open space
Locaux techniques

- Immeuble de bon standing
- Hall d'accueil rénové
- Hôtesse d'accueil

- Surface rénovée par le propriétaire

Travaux réalisés :
- Remise en Peinture
- Remplacement moquette
- Remplacement des Faux Plafonds
- Pose de dalles LED
- Décloisonnement

- Climatisation

- Fin des travaux prévus pour mars 2025

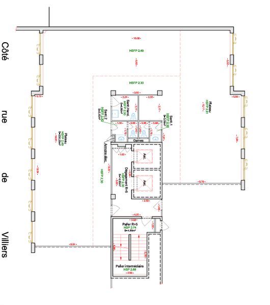
Surfaces disponibles

2 lots disponibles
Étage Type Surface Disponibilité Type de Bail Loyer Charges
Sous-sol Parkings / 1er mars 2026 3-6-9 ans 1 200 € HT/HC/place/an N.C.
5ème étage Bureaux 261 m² 1er mars 2026 3-6-9 ans 320 € HT/HC/m²/an 73 € m²/an HT

Les informations sur les risques auxquels ce bien est exposé sont disponibles sur le site Géorisques : georisques.gouv.fr

Jeremy MARCIANO

07 81 98 52 36

jeremymarciano@alexbolton.fr

Annonces similaires

Voir toutes les transactions