REF 1422084-0L

66 rue Saint Dominique

75007 PARIS

Loyer

406 € HT/HC/m²/an

Surface

1 969 m² non divisibles

Disponibilité

Immédiate

Type de Bail

Précaire

Alex Bolton vous propose un bâtiment indépendant atypique idéal pour showroom en dérogatoire. A proximité immédiate de l’ Hôtel des Invalides l’immeuble bénéficie d’une localisation exceptionnelle au cœur du 7ème
arrondissement. Avec une hauteur sous plafond exceptionnelle, la surface ERP pourra convenir pour divers projets. Disponible en dérogatoire de 12 à 24 mois. Votre contact pour toute visite 06.31.59.50.72

Prestations

Immeuble de services
Espaces extérieurs
Hauteur sous plafond

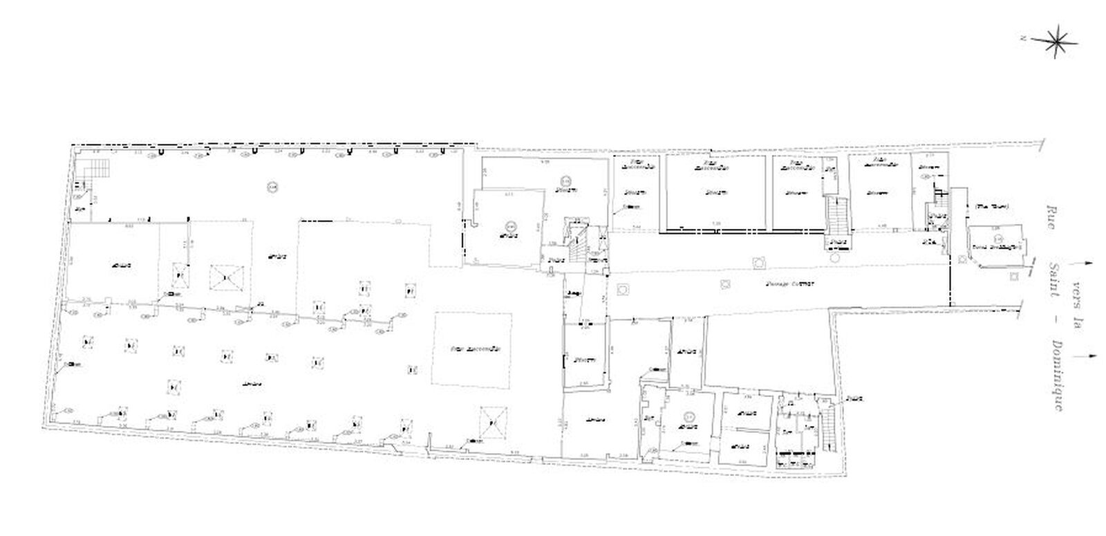
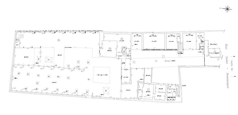
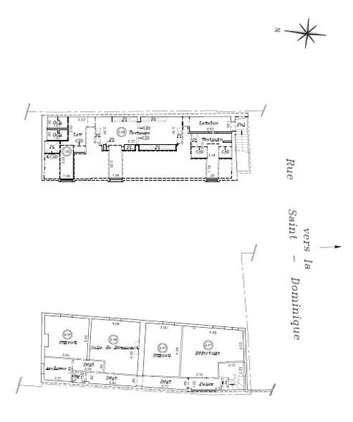
Ensemble immobilier composé de :
- Une cour couverte au centre des bâtiments
- Un bâtiment en R+ 1 de bureaux cloisonnés
- Un bâtiment en R+ 2 de bureaux avec cuisine et sanitaires
- 2 grandes halles parallèle au RDC en fond de cour avec plus de 6 m de hauteur sous plafond

Surfaces disponibles

3 lots disponibles
Étage Type Surface Disponibilité Type de Bail Loyer Charges
Rez-de-chaussée Bureaux 1302 m² Immédiate Précaire 406 € HT/HC/m²/an N.C.
2ème étage Bureaux 134 m² Immédiate Précaire 406 € HT/HC/m²/an N.C.
1er étage Bureaux 533 m² Immédiate Précaire 406 € HT/HC/m²/an N.C.

Les informations sur les risques auxquels ce bien est exposé sont disponibles sur le site Géorisques : georisques.gouv.fr

Charles-Edouard DE LA SIMONE

06.31.59.50.72

cedelasimone@alexbolton.fr

Annonces similaires

Voir toutes les transactions