REF 1275141-0L

SIXT-IN PARIS ETOILE
6-8 rue Duret

75016 PARIS

Loyer

733 € HT/HC/m²/an

Surface

6 335 m² non divisibles

Disponibilité

Immédiate

Type de Bail

6-9 ans

Opportunité. A louer à proximité de l'Etoile, bel immeuble indépendant haussmannien d angle restructuré en 2012/2013 en R +5 , avec large cour intérieure végétalisée. Parkings immeuble

Prestations

Restructuré
Atypique
Immeuble indépendant / Hôtel particulier
Certifications environnementales
Immeuble de services
Espaces extérieurs
Climatisation réversible
Parking vélos
Salles de réunion partagées
Ascenseur / Monte-charge
Surfaces fonctionnelles
Câblage informatique
Sécurité
Locaux techniques

- Immeuble Haussmannien
- Certification(s) environnementale(s) / Labels : BREEAM
- Accès aux Personnes à Mobilité Réduite
- Hall d'entrée
- Hôtesse d'accueil
- Vidéo-surveillance
- Contrôle d'accès extérieur
- Gestion Technique du Bâtiment
- Fibre optique

- Immeuble indépendant
- Bel immeuble haussmannien d'angle restructuré en 2013
- Ravalement récent
- Ascenseur et monte-charge
- Bureaux en bon état partiellement cloisonnés
- Climatisation (poutres froides)
- Faux plafond et faux plancher
- Large cour intérieure végétalisée accessible
- Salles de réunion dont une grande sous verrière
- Archives
- Local vélos et douches en sous-sol

Surfaces disponibles

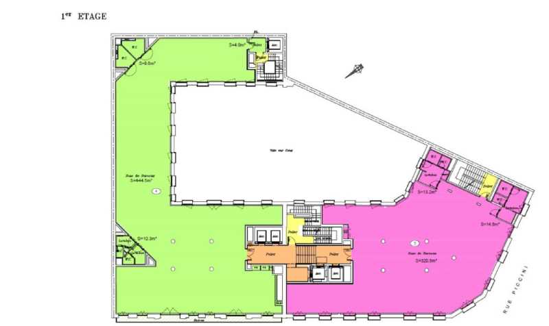
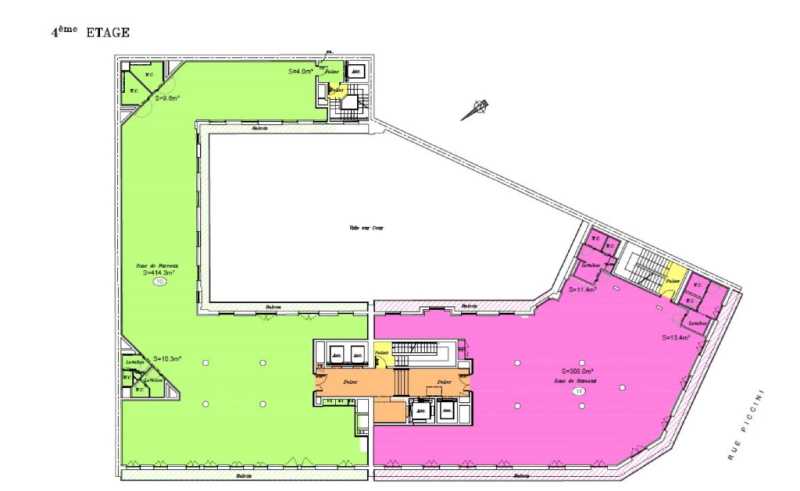
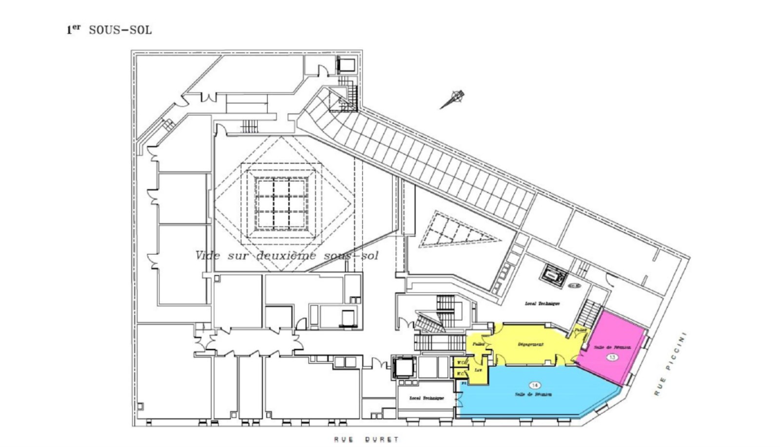
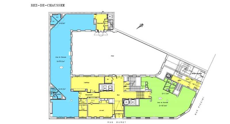
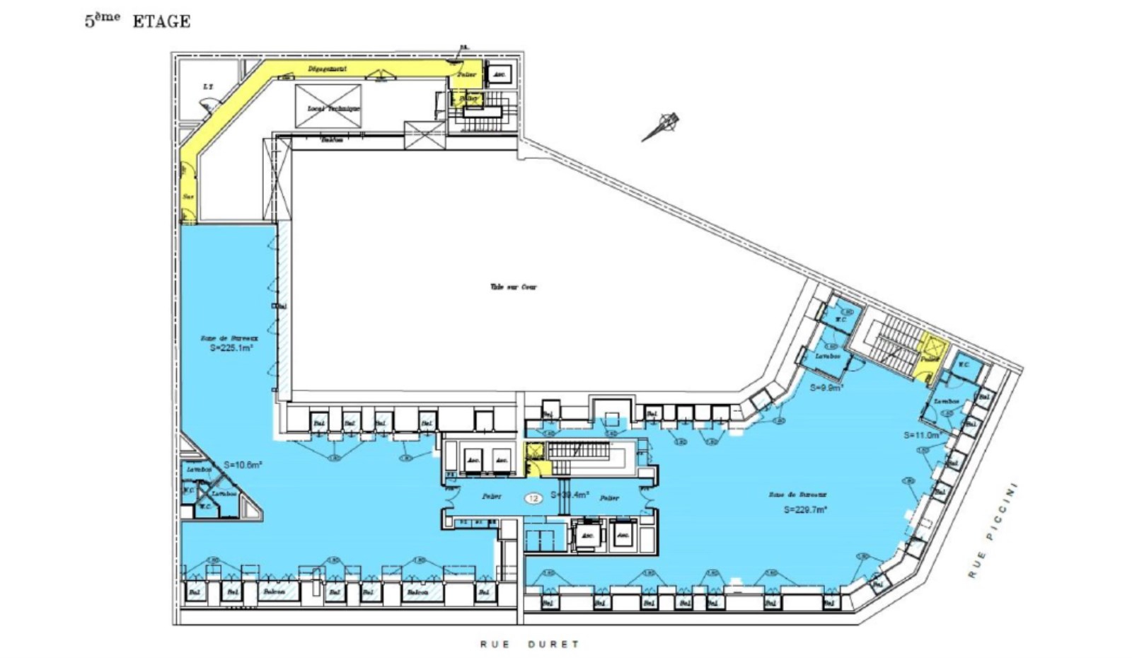
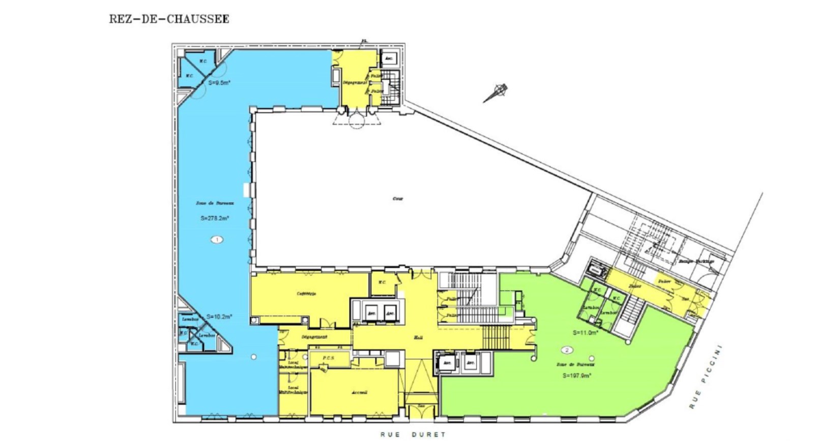
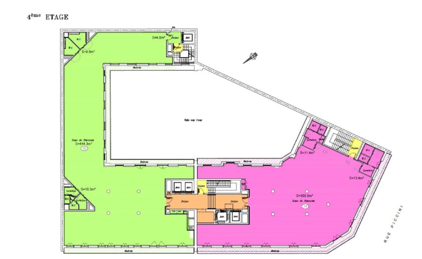
10 lots disponibles
Étage Type Surface Disponibilité Type de Bail Loyer Charges
Rez-de-chaussée Bureaux 594 m² Immédiate 6-9 ans 733 € HT/HC/m²/an 41 € m²/an HT
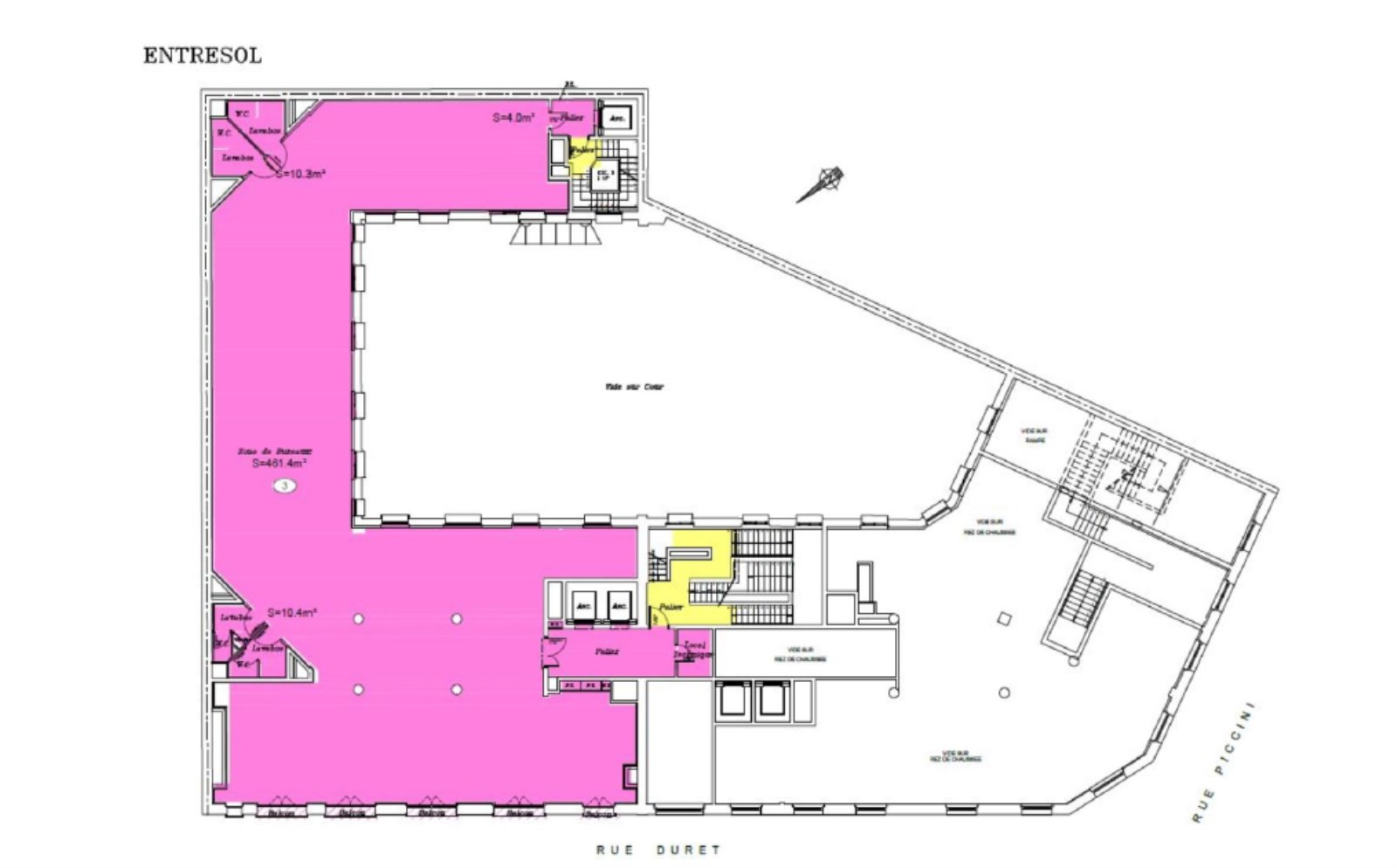
Entre-sol Bureaux 555 m² Immédiate 6-9 ans 733 € HT/HC/m²/an 41 € m²/an HT
5ème étage Bureaux 617 m² Immédiate 6-9 ans 733 € HT/HC/m²/an 41 € m²/an HT
4ème étage Bureaux 944 m² Immédiate 6-9 ans 733 € HT/HC/m²/an 41 € m²/an HT
3ème étage Bureaux 1010 m² Immédiate 6-9 ans 733 € HT/HC/m²/an 41 € m²/an HT
3ème Sous-sol Parkings / Immédiate 6-9 ans 2 300 € HT/HC/place/an N.C.
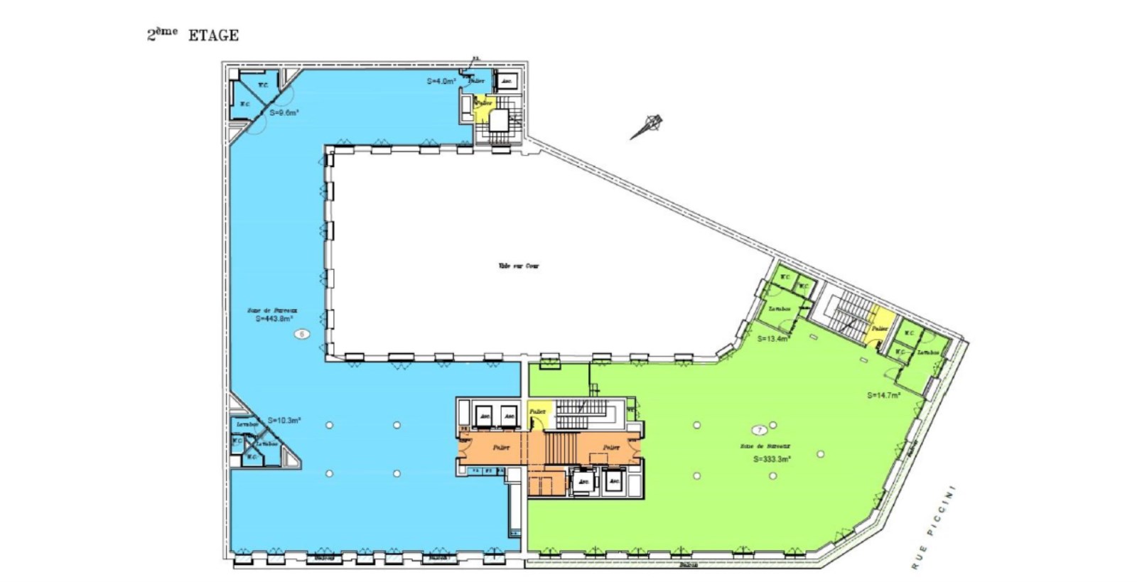
2ème étage Bureaux 1012 m² Immédiate 6-9 ans 733 € HT/HC/m²/an 41 € m²/an HT
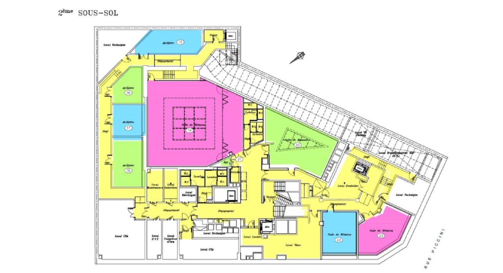
2ème Sous-sol Bureaux 494 m² Immédiate 6-9 ans 733 € HT/HC/m²/an 41 € m²/an HT
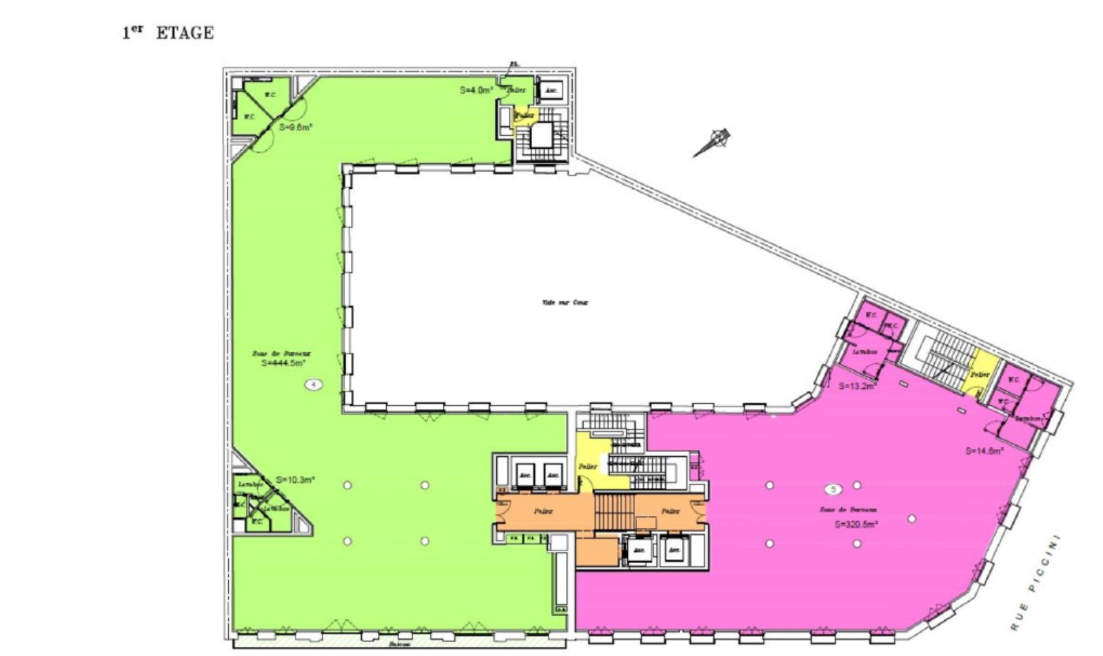
1er étage Bureaux 997 m² Immédiate 6-9 ans 733 € HT/HC/m²/an 41 € m²/an HT
1er Sous-sol Bureaux 112 m² Immédiate 6-9 ans 733 € HT/HC/m²/an 41 € m²/an HT

Les informations sur les risques auxquels ce bien est exposé sont disponibles sur le site Géorisques : georisques.gouv.fr

Mathieu KRAFFT

+33 6 75 65 65 84

mathieukrafft@alexbolton.fr

Annonces similaires

Voir toutes les transactions