REF 1334734-0L

FAUBOURG 45
45 rue de l'Est

92100 BOULOGNE BILLANCOURT

Prix

nous consulter

Surface

833 m² divisibles à partir de 391 m²

Disponibilité

T1 2027

Au cœur de Boulogne Billancourt, Alex Bolton vous propose à la vente des surfaces de bureaux au sein d'un immeuble neuf, offrant des prestations modernes et fonctionnelles.
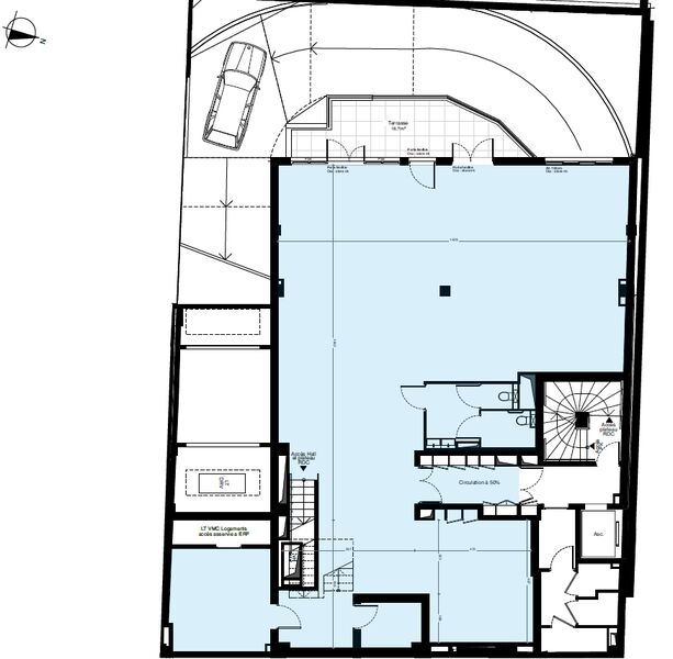
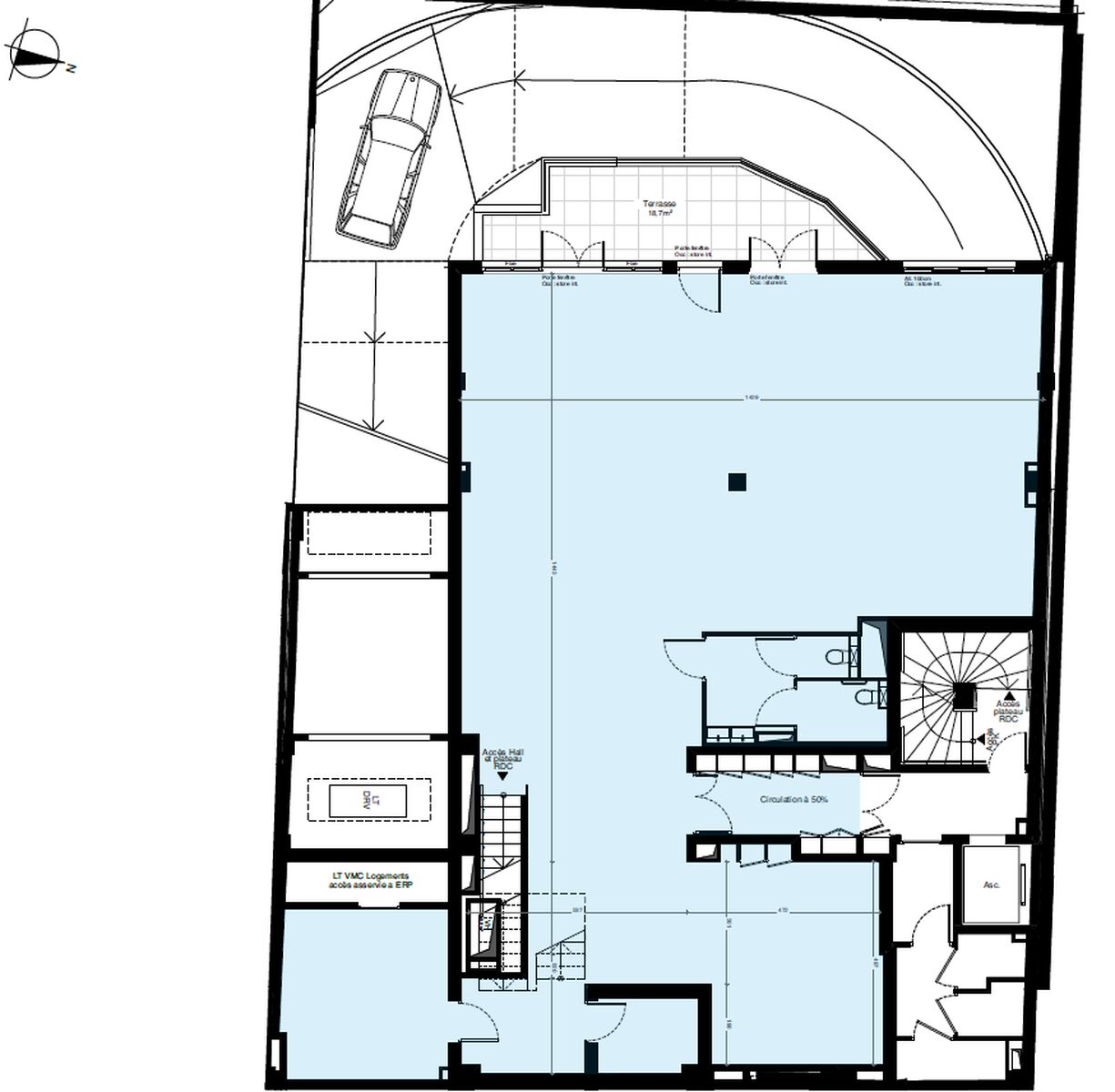
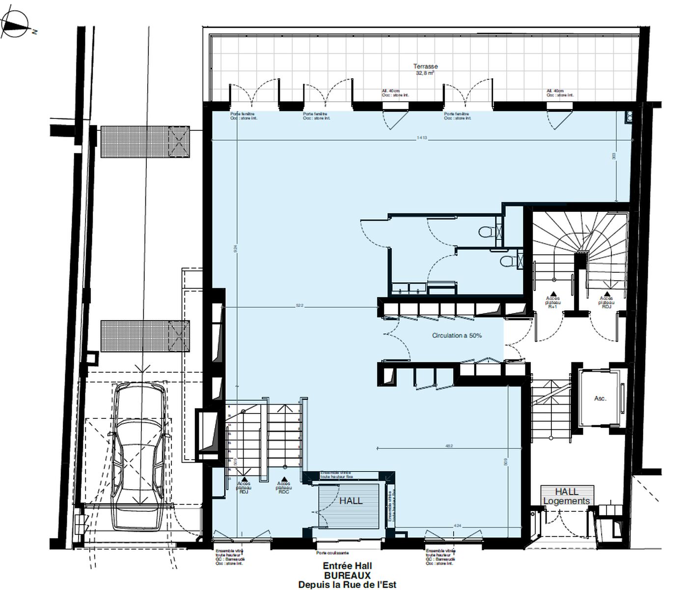
Le surfaces en rez-de-chaussée et rez-de-jardin disposent d'espaces extérieurs.
Cet actif est proposé dans le cadre d'une vente en l'état futur d'achèvement (VEFA) avec une possibilité de clés en main.
Vos contact pour toute visite : Pierre MULAZZI / pierremulazzi@alexbolton.fr / 07 89 58 46 41 et Jérémy MARCIANO / jeremymarciano@alexbolton.fr / 07 81 98 52 36

Prestations

Espaces extérieurs
Climatisation réversible
ERP
Parking voitures
Ascenseur / Monte-charge
Accès PMR
Locaux lumineux
Sécurité

- Parties communes en très bon état
- Contrôle d'accès, badges et visiophone
- Immeuble relié à la fibre
- Ascenseur desservant le parking
- Accessibilité PMR

- Plateaux traversants
- Cloisonnement facile et modulable
- 2 sanitaires par plateaux dont 1 PMR
- Hauteur libre minimal : 2,50 m
- Possibilité de division :
Duplex RDC + RDJ : 390,50 m²
Duplex 1er et 2è étages : 442,50 m²
- Climatisation réversible (système DRV)
- Présomption d'ERP
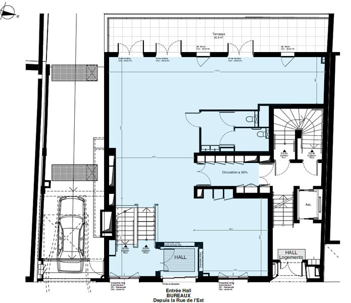
- Un accès direct depuis la rue avec possibilité de vitrine
- Terrasses : RDC (32;80 m²) - RDJ (18,70 m²)

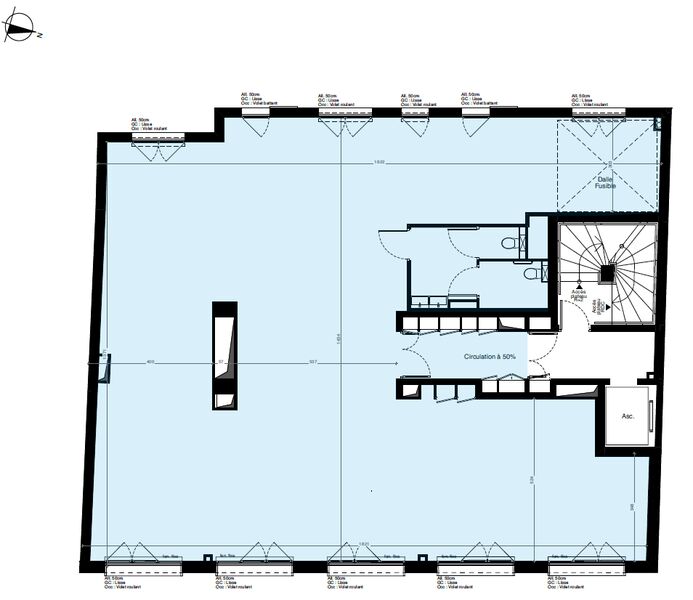
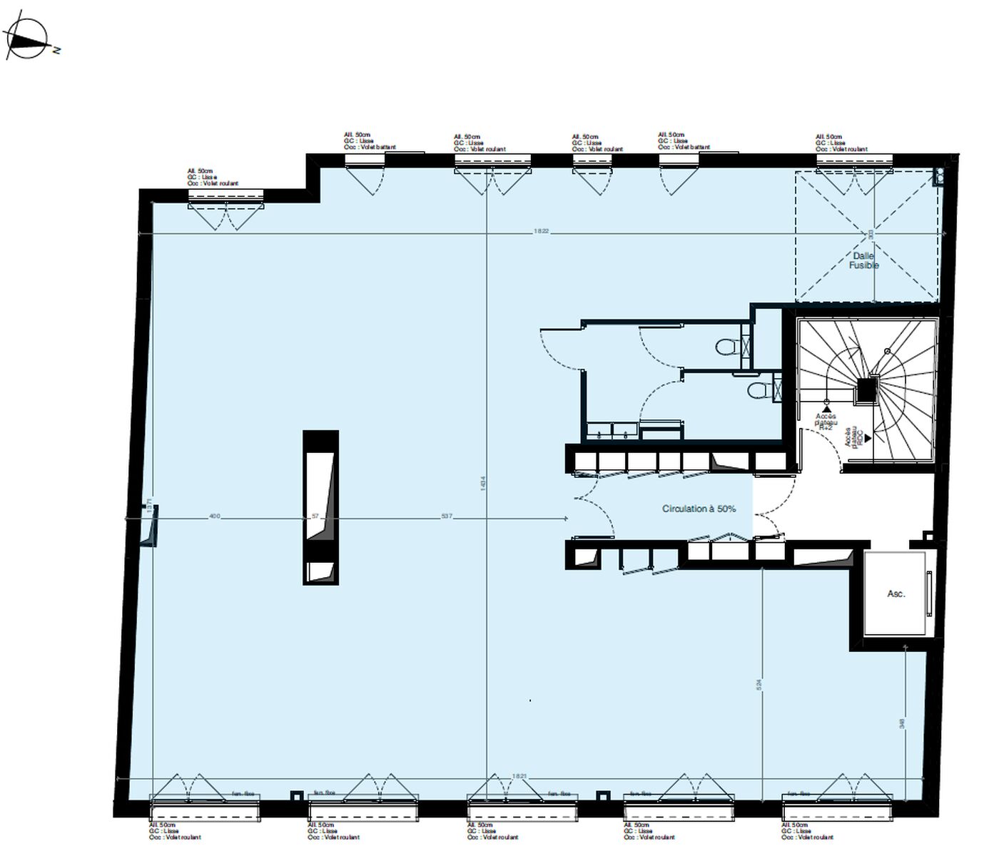
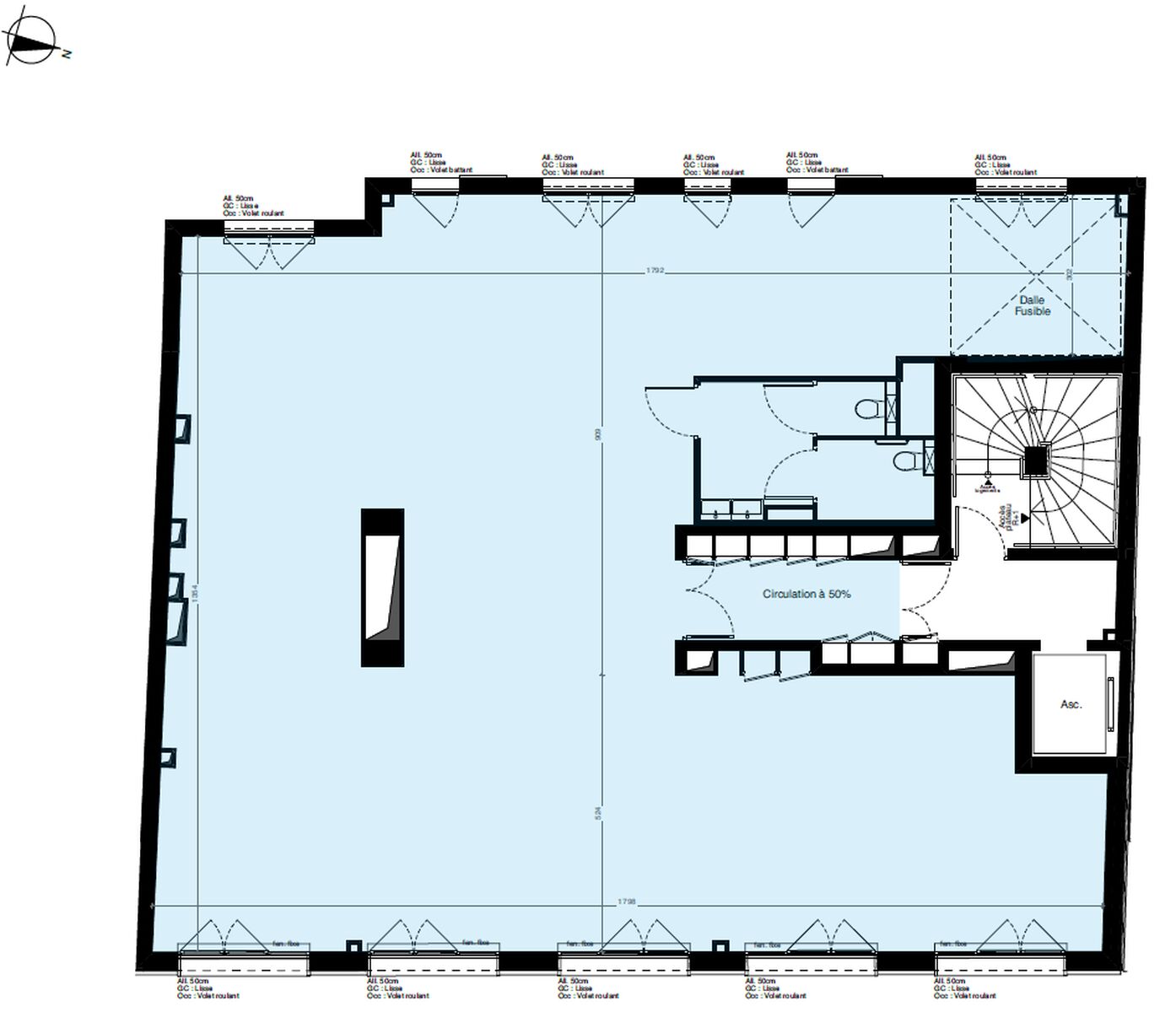
Surfaces disponibles

4 lots disponibles
Étage Type Surface Disponibilité Prix (m²)
Rez-de-jardin Bureaux 238.5 m² T1 2027 m² HD
Rez-de-chaussée Bureaux 152 m² T1 2027 m² HD
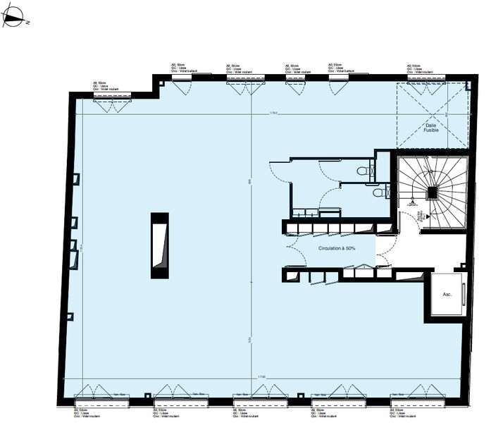
2ème étage Bureaux 221.4 m² T1 2027 m² HD
1er étage Bureaux 221.1 m² T1 2027 m² HD

Les informations sur les risques auxquels ce bien est exposé sont disponibles sur le site Géorisques : georisques.gouv.fr

Pierre Mulazzi

0789584641

pierremulazzi@alexbolton.fr

Annonces similaires

Voir toutes les transactions