REF 1321068-0L

45 rue Broca

75005 PARIS

Loyer

500 €

Surface

330 m² non divisibles

Disponibilité

Immédiate

Type de Bail

3-6-9 ans

ALEX BOTON vous propose une surface de bureaux d'environ 330m² au cœur du 5ème arrondissement avec entrée indépendante. Locaux fonctionnels avec beaux volumes, salles de réunion et bureaux individuels répartis sur trois niveaux. Idéale pour une activité de cabinet d'expert comptable, un centre médical, un cabinet d'architecture.

Prestations

Atypique
Immeuble de services
Espaces extérieurs
Salles de réunion partagées
Câblage informatique
Sécurité

- Accès sécurisé
- Digicode
- Sas d'entrée
- Fibre optique
- Rue sécurisée (à proximité d'un poste de police)
- Accès privatif
- Locaux atypiques avec verrière
- Salle de réunion
- Grand open-space
- Fibre optique
- Sanitaires
- Bureaux cloisonnés
- Cours intérieure

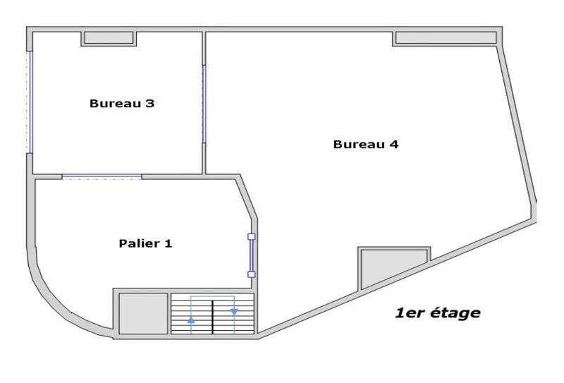
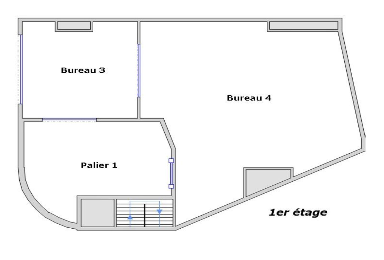
Surfaces disponibles

3 lots disponibles
Étage Type Surface Disponibilité Type de Bail Loyer Charges
Rez-de-chaussée Bureaux 250 m² Immédiate 3-6-9 ans 500 € N.C.
2ème étage Bureaux 32 m² Immédiate 3-6-9 ans 500 € HT/HC/m²/an N.C.
1er étage Bureaux 48 m² Immédiate 3-6-9 ans 500 € N.C.

Les informations sur les risques auxquels ce bien est exposé sont disponibles sur le site Géorisques : georisques.gouv.fr

Mathieu KRAFFT

+33 6 75 65 65 84

mathieukrafft@alexbolton.fr

Annonces similaires

Voir toutes les transactions