REF 1350694-0L

40 rue Eugène Oudiné

75013 PARIS

Prix

1 290 000 € HD

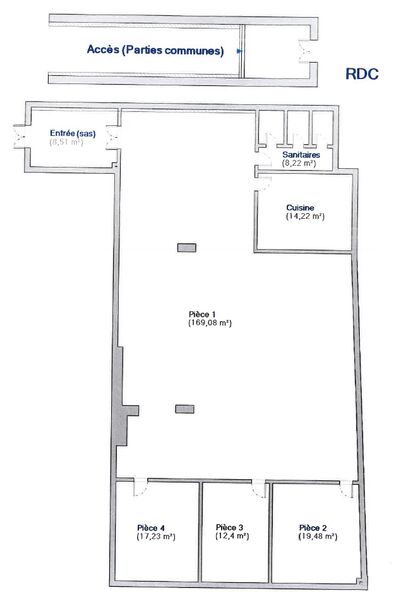
Surface

250 m² non divisibles

Disponibilité

Immédiate

Dans un immeuble situé au cœur du 13ème arrondissement, métro "Bibliothèque François-Mitterrand", nous vous proposons à l'acquisition un local commercial idéal pour des activités informatiques, de bureaux ou de stockage de matériel, offrant un accès direct depuis la rue via un quai de déchargement. L'espace est conforme aux normes ERP/PMR, avec une capacité d'accueil de 100 personnes.

Prestations

Rénové
ERP

- Surface flexible avec un accès privatif et indépendant depuis la rue via un quai de déchargement, qui vient d'être entièrement rénovée par le vendeur
- Belle hauteur-sous-plafond
- Skydomes
- Destination : local commercial
- Capacitaire : effectif admissible de 100 personnes
- Possibilité ERP (travaux nécessitant la réalisation d'une rampe de 5% maximum)

Surfaces disponibles

1 lots disponibles
Étage Type Surface Disponibilité Prix (m²)
Rez-de-chaussée Bureaux 250 m² Immédiate 5 160 € m² HD

Les informations sur les risques auxquels ce bien est exposé sont disponibles sur le site Géorisques : georisques.gouv.fr

Jean-Baptiste BUQUOY

07 65 59 44 60

jbb@alexbolton.fr

Annonces similaires

Voir toutes les transactions