REF 1413859-0L

36-40 rue de Picpus

75012 PARIS

Loyer

430 € HT/HC/m²/an

Surface

2 800 m² divisibles à partir de 1 108 m²

Disponibilité

Nous consulter

Type de Bail

9 ans

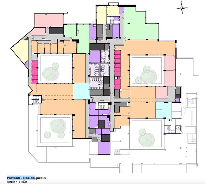
A toute proximité du hub de transport de la place de la Nation, Alex Bolton vous propose à la location une grande surface de bureaux en rez-de-jardin d'un seul tenant d'environ 2.500 m² divisibles en 2 lots de 1300 m² environ. Les locaux sont lumineux et sans aucune contraintes. Ils s'articulent autour de deux grands jardins. De nombreux accès indépendants permettent aux locaux une classification ERP.

Prestations

Rénové
Certifications environnementales
Immeuble de services
Climatisation réversible
ERP
Hauteur sous plafond
Câblage informatique

- Immeuble copropriété
- Label : BREEAM Use Very Good
- Accès aux personnes à mobilité réduite

- Surfaces livrées rénovées
- Espaces ouverts
- Bureaux en premier jour
- Division possible
- Possibilité d'ERP
- Sanitaires privatifs (X2)
- Plinthes périphériques
- Hauteur sous plafond : 2,65 m
- Moquette
- Douche
- Chauffage collectif
- Climatisation réversible

Surfaces disponibles

3 lots disponibles
Étage Type Surface Disponibilité Type de Bail Loyer Charges
Sous-sol Archives 235 m² Nous consulter 9 ans 100 € HT/HC/m²/an N.C.
Rez-de-jardin Bureaux 2800 m² Nous consulter 9 ans 430 € HT/HC/m²/an 42 € m²/an HT
Parkings / Nous consulter 9 ans 1 800 € HT/HC/place/an N.C.

Les informations sur les risques auxquels ce bien est exposé sont disponibles sur le site Géorisques : georisques.gouv.fr

Frédéric de SAINT LOUVENT

07 60 76 21 23

fredericdesaintlouvent@alexbolton.fr

Annonces similaires

Voir toutes les transactions