REF 1378437-0L

118-122 rue de Vaugirard

75006 PARIS

Prix

4 500 000 € HD HH

Surface

386 m² non divisibles

Disponibilité

Immédiate

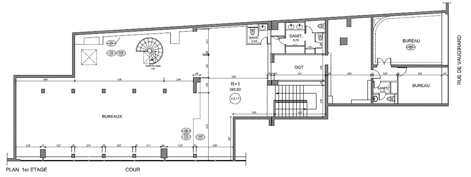
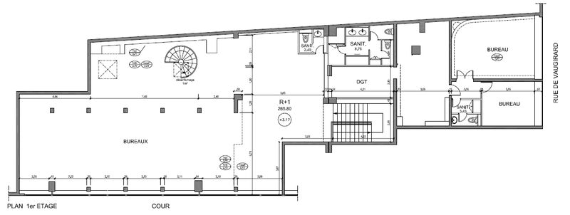
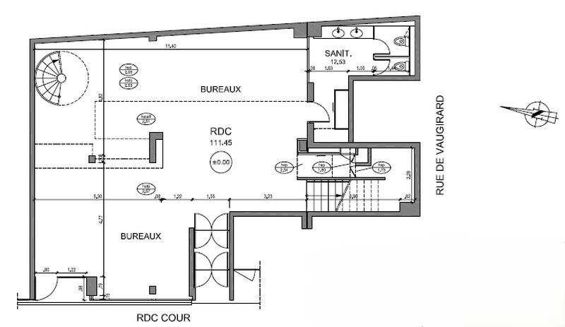
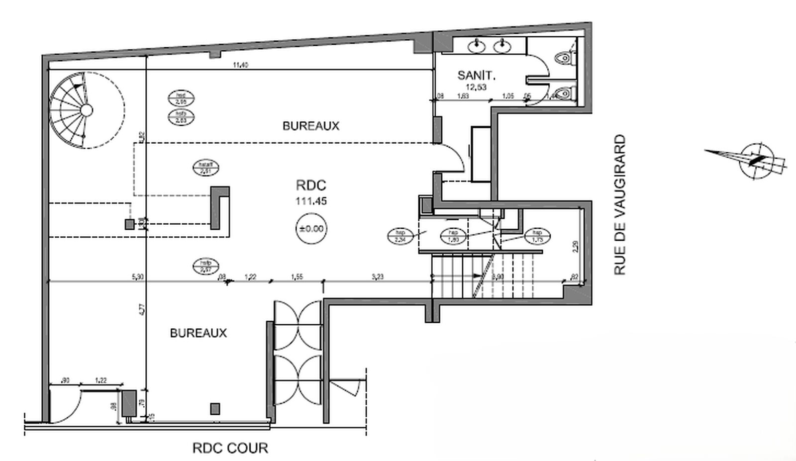
Nous vous proposons à la vente des bureaux d'une superficie de 386 m², situés rue de Vaugirard, à proximité immédiate de la Gare Montparnasse et de la rue de Rennes. Cette surface récemment rénovée et climatisée s'articule sur deux niveaux reliés par deux escaliers privatifs.
Elle donne intégralement sur un jardin intérieur offrant des espaces de travail lumineux et calmes.

Prestations

Rénové
Immeuble de services
Espaces extérieurs
Climatisation réversible
Parking voitures
Ascenseur / Monte-charge
Locaux lumineux
Sécurité
Locaux techniques

- Ascenseur
- Gardien à demeure
- Parkings et archives en sous-sol

- Surface récemment rénovée et climatisée s'articule sur deux niveaux reliés par deux escaliers privatifs
- Elle donne intégralement sur un jardin intérieur offrant des espaces de travail lumineux et calmes
- Des locaux d'archives de 28 m² complètent ce bien
- 7 places de parking en sus du prix

DPE

Surfaces disponibles

3 lots disponibles
Étage Type Surface Disponibilité Prix (m²)
Rez-de-chaussée Bureaux 118 m² Immédiate m² HD
3ème Sous-sol Archives 27.3 m² Immédiate m² HD
1er étage Bureaux 268.2 m² Immédiate m² HD

Les informations sur les risques auxquels ce bien est exposé sont disponibles sur le site Géorisques : georisques.gouv.fr

Guillaume MAHISTRE

06 33 44 50 93

guillaumemahistre@alexbolton.fr

Annonces similaires

Voir toutes les transactions