REF 1411725-0L

5 rue Ibry

92200 NEUILLY SUR SEINE

Prix

nous consulter

Surface

115 m² non divisibles

Disponibilité

Après accord

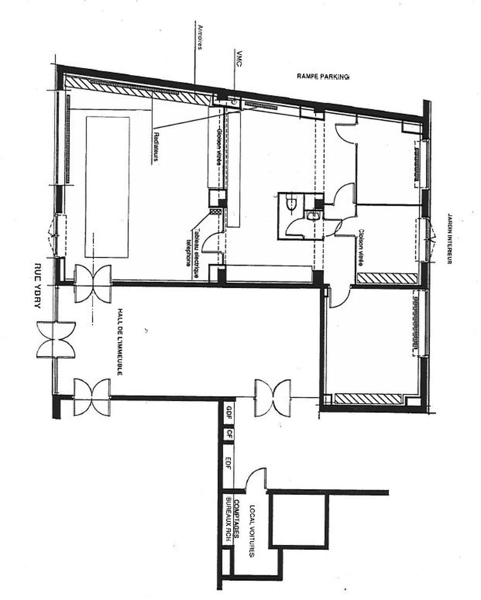
A proximité immédiate du Pont de Neuilly, Alex Bolton vous propose à la vente une surface de bureaux de 115 m², en rez-de-chaussée. Idéal professions médicales. La surface dispose de la commercialité.

Prestations

ERP
Accès PMR

- Situé en RDV d'un immeuble d'habitation actuellement occupé par un Cabinet Médical
- Accès ERP
- Accès PMR
- Traversant
- Surface entièrement décloisonnable

Surfaces disponibles

2 lots disponibles
Étage Type Surface Disponibilité Prix (m²)
Sous-sol Parkings / Après travaux m² HD
Rez-de-chaussée Bureaux 115.26 m² Après travaux 13 014 € m² HD

Les informations sur les risques auxquels ce bien est exposé sont disponibles sur le site Géorisques : georisques.gouv.fr

Investissement

contact@alexbolton.fr

Annonces similaires

Voir toutes les transactions