REF 1526613-0L

30 rue de Miromesnil

75008 PARIS

Prix

4 440 000 € Net Vendeur

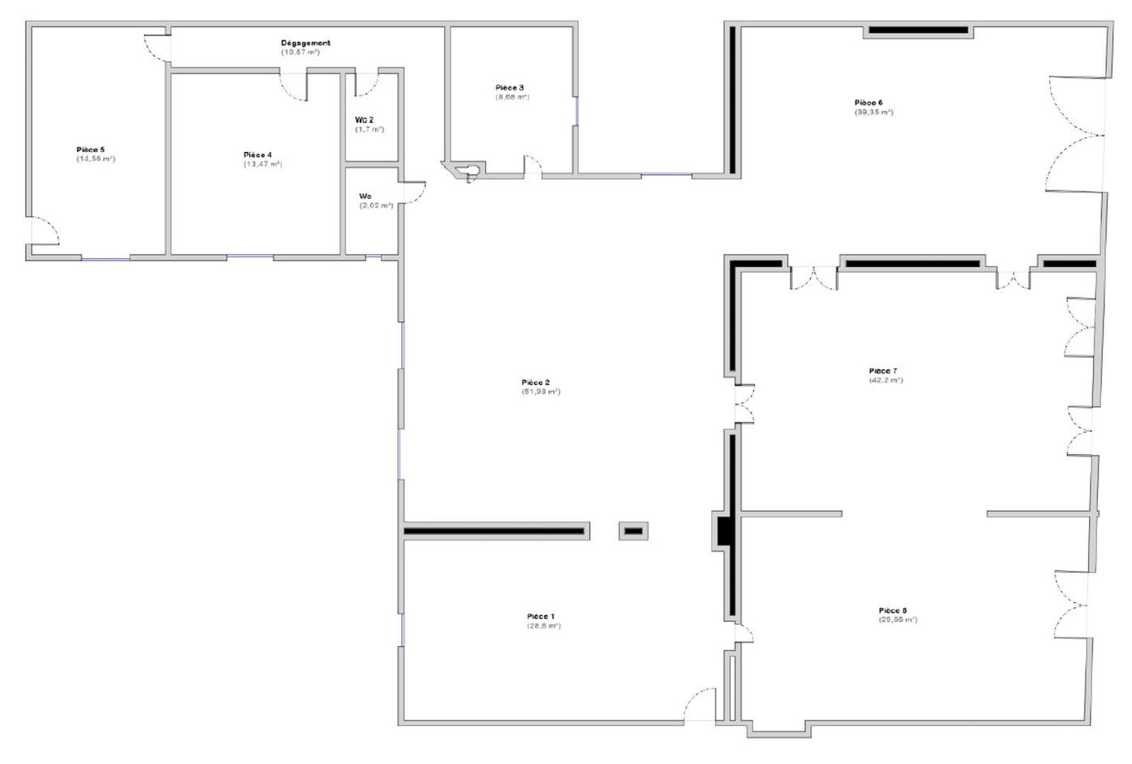
Surface

239 m² non divisibles

Disponibilité

Immédiate

Alex Bolton vous propose à la vente un plateau de 239.58 m² de bureaux situé au 2ème étage d’un très bel immeuble, au cœur du prestigieux 8ème arrondissement de Paris.
Entièrement rénovés avec des prestations haut de gamme, ces bureaux offrent un cadre de travail élégant et fonctionnel. Vous serez séduit par le charme de l’haussmannien : moulures, cheminées, belle hauteur sous plafond. La luminosité, permise par de grandes fenêtres en étage élevé, renforce le confort et la convivialité des espaces. Cet actif rare sur le secteur bénéficie d’une excellente desserte en transports, faisant de ces bureaux une opportunité idéale pour une implantation prestigieuse.

Prestations

Rénové
Immeuble de services
Locaux lumineux
Hauteur sous plafond
Sécurité

- Très bel immeuble Haussmannien en pierre de taille
- Gardien
- Accès sécurisés
- Contrôle d'accès extérieur

- Rénovation complète très haut de gamme
- Cheminée
- Moulures
- Belle hauteur sous plafond
- Plateau lumineux

Surfaces disponibles

1 lots disponibles
Étage Type Surface Disponibilité Prix (m²)
2ème étage Bureaux 239.58 m² Immédiate 18 532 € m² HD

Les informations sur les risques auxquels ce bien est exposé sont disponibles sur le site Géorisques : georisques.gouv.fr

Pierre Mulazzi

0789584641

pierremulazzi@alexbolton.fr

Annonces similaires

Voir toutes les transactions