REF 1394419-0L

120 route de la Reine

92100 BOULOGNE BILLANCOURT

Prix

4 100 000 € HD net vendeur

Surface

509 m² divisibles

Disponibilité

Nous consulter

Immeuble mixte à usage de bureaux et d’habitation, offrant une vue dégagée sur le square Léon Blum. D’une surface totale de 508.56 m². La surface du 118 route de la Reine (28.67 m²) peut être vendue séparément., permettant ainsi une occupation flexible selon les besoins. Idéal pour un investisseur ou un utilisateur souhaitant combiner activité professionnelle et logement dans un environnement agréable.

Prestations

Espaces extérieurs
Câblage informatique

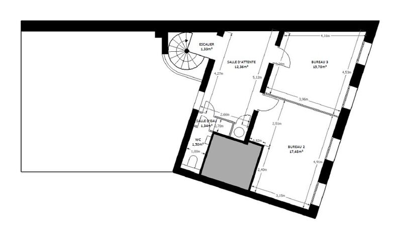
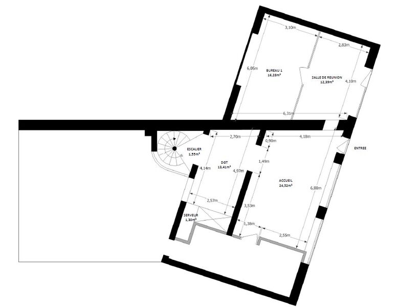
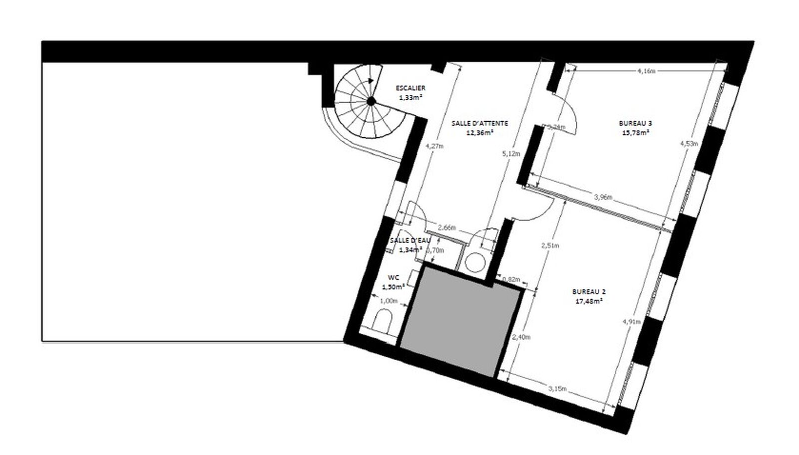
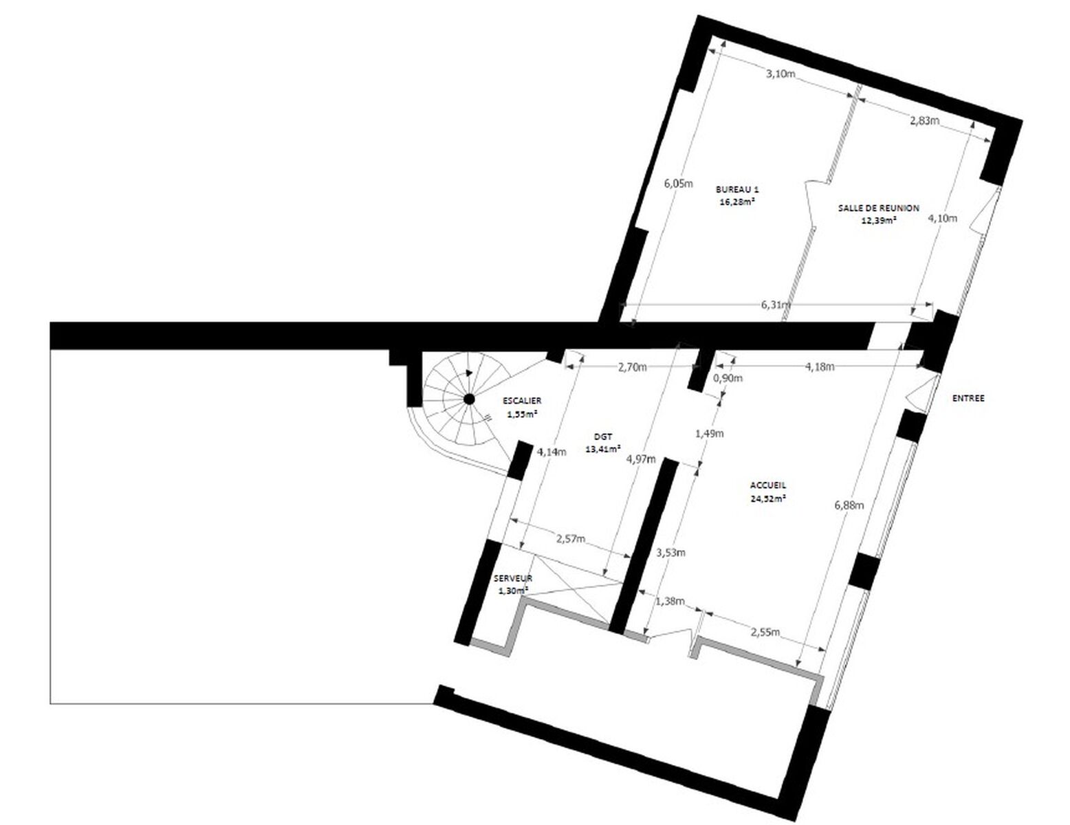
BUREAUX - 158.09 m²
- Sous sol : 36.45 m²
- RDC : 52.19 m²
- RDC 118 route de la reine : 28.67 m²
- R+1 : 40.78 m²

HABITATION - 350,47 m²
- RDC cour : 68 m²
- 4 pièces triplex : 114,47 m²
- T2 : 39 m²
- Studio : 17 m²
- T2 : 39 m²
- Studio : 17 m²
- T2 : 39 m²
- Studio : 17 m²

Surfaces disponibles

12 lots disponibles
Étage Type Surface Disponibilité Prix (m²)
Sous-sol Bureaux 36.45 m² Nous consulter m² HD
Rez-de-chaussée Bureaux 28.67 m² Nous consulter m² HD
Rez-de-chaussée Habitation 68 m² Nous consulter m² HD
Rez-de-chaussée Bureaux 40.78 m² Nous consulter m² HD
4ème étage Habitation 39 m² Nous consulter m² HD
4ème étage Habitation 17 m² Nous consulter m² HD
3ème étage Habitation 17 m² Nous consulter m² HD
3ème étage Habitation 39 m² Nous consulter m² HD
2ème étage Habitation 17 m² Nous consulter m² HD
2ème étage Habitation 39 m² Nous consulter m² HD
1er étage Bureaux 52.19 m² Nous consulter m² HD
1er étage Habitation 114.47 m² Nous consulter m² HD

Les informations sur les risques auxquels ce bien est exposé sont disponibles sur le site Géorisques : georisques.gouv.fr

Pierre Mulazzi

0789584641

pierremulazzi@alexbolton.fr

Annonces similaires

Voir toutes les transactions