REF 1315989-0L

10 rue Notre Dame de Nazareth

75003 PARIS

Prix

2 100 000 € HD HH

Surface

169 m² non divisibles

Disponibilité

Immédiate

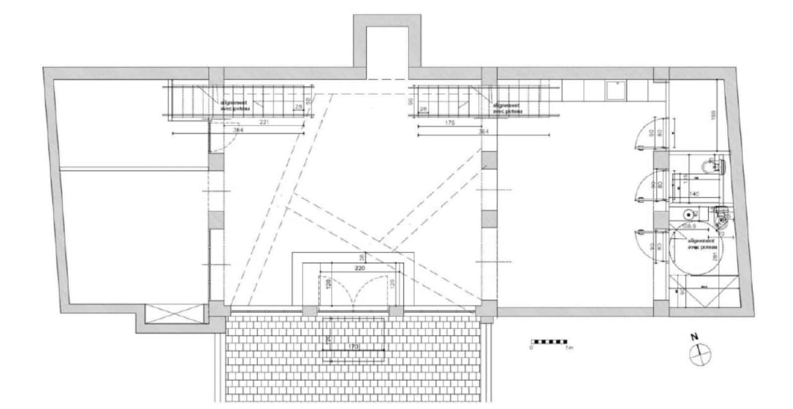
A vendre / A proximité de la place de la République, accessible depuis une cour pavée, nous vous proposons un local commercial de 169,05m² entièrement rénové bénéficiant d'un grand volume avec deux mezzanines de part et autre de l'espace principal. La rénovation effectuée a permis de révéler le cachet d'origine du lieu, pierres apparentes, colonnes en pierre, voutes et portes cintrées, parquet massif. Le local comprend également une cuisine entièrement équipée, une salle d'eau et 2 WCs.

Prestations

Rénové
Atypique
Immeuble de services
Câblage informatique

- Grandes baies vitrées en façade
- Parquet en chêne massif
- Chauffage au sol
- Cuisine équipée (réfrigérateur, lave-vaisselle)
- Grande hauteur (4,05 m en partie centrale)
- Pierres apparentes
- Hauteur sous mezzanine : 2,20 m²
- Hauteur des mezzanines : 2,05 m²
- Local entièrement rénové

Surfaces disponibles

3 lots disponibles
Étage Type Surface Disponibilité Prix (m²)
Rez-de-chaussée Bureaux 109 m² Immédiate m² HD
Mezzanine Bureaux 24 m² Immédiate m² HD
Mezzanine Bureaux 36 m² Immédiate m² HD

Les informations sur les risques auxquels ce bien est exposé sont disponibles sur le site Géorisques : georisques.gouv.fr

Rémi SAUSSEY

07 60 43 30 93

remisaussey@alexbolton.fr

Annonces similaires

Voir toutes les transactions